Objektbeschreibung
Hochwertige Maisonette-Wohnung mit Dachterrasse – stilvolles Wohnen in schöner Innenstadt-Lage, direkt an der Wupper.
Dieses Immobilienangebot ist bereits im Jahr 2026 verkauft worden.
Sie sind auf der Suche nach einer Immobilien in Köln und Umgebung? Dann setzen Sie sich jetzt mit Ihrem lokalen Immobilienmakler Goost in Verbindung.
Möchten Sie Ihre Immobilie verkaufen oder bewerten lassen?
Dann sind Sie ebenfalls bei Goost Immobilien in Köln richtig. Setzen Sie sich sehr gerne direkt mit uns in Verbindung.
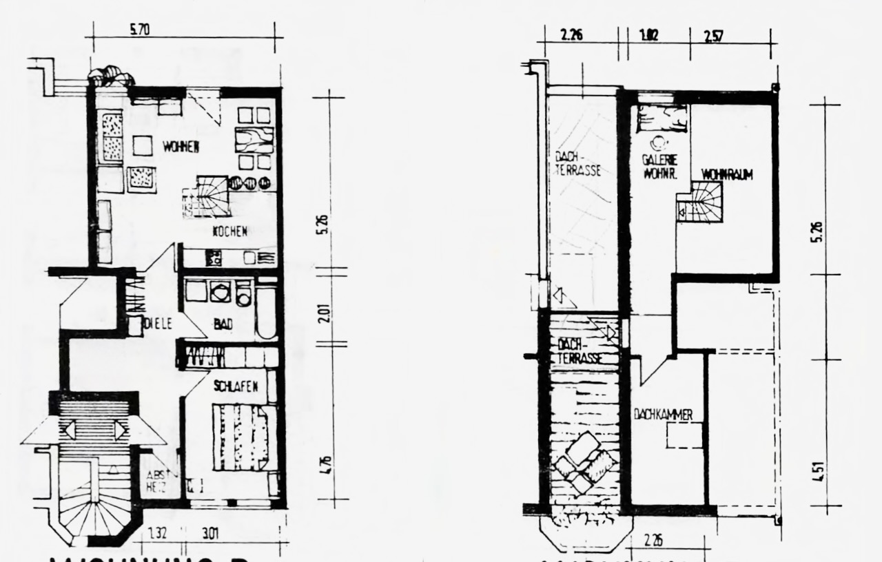
Diese außergewöhnliche Maisonette-Wohnung vereint großzügiges Wohnen, moderne Architektur und ein einladendes Raumgefühl auf zwei Ebenen. Die Eigentumswohnung befindet sich in der zweiten Etage eines gepflegten Wohnhauses und überzeugt durch eine durchdachte Grundrissgestaltung sowie helle Räume.
Gerne bieten wir auch bei diesem Immobilienangebot eine Videobesichtigung der Immobilie an:
Sie sehen gerade einen Platzhalterinhalt von YouTube. Um auf den eigentlichen Inhalt zuzugreifen, klicken Sie auf die Schaltfläche unten. Bitte beachten Sie, dass dabei Daten an Drittanbieter weitergegeben werden.
Mehr Informationen
Bereits der geräumige Eingangsbereich eröffnet den Blick in das großzügige Wohnzimmer mit offener Küche, das durch seinen guten Schnitt besticht. Hier entstehen mühelos Wohn-, Ess- und Kochbereiche, die harmonisch ineinander übergehen. Die offene Küche lädt zum gemeinsamen Kochen ein und bildet das kommunikative Herzstück dieser Wohnebene.
Auf dieser Ebene befindet sich ebenfalls das gut geschnittenes Schlafzimmer und das Duschbad mit einer großen begehbaren Dusche. Ein praktischer Abstellraum ergänzt das Raumangebot auf der unteren Ebene und schafft zusätzlichen Stauraum.
Über eine schöne Holztreppe gelangen Sie in die obere Etage der Maisonettewohnung, die mit einem weiteren Zimmer vielfältige Nutzungsmöglichkeiten eröffnet – ob als Arbeitszimmer, Gästezimmer oder Hobbybereich. Eine offene Galerie schafft zusätzliche Großzügigkeit und verleiht der Wohnung einen besonderen architektonischen Reiz. Von hier aus gelangen Sie zudem auf die große Dachterrasse, die einen privaten Rückzugsort im Freien bietet und zu entspannten Stunden einlädt.
Abgerundet wird dieses attraktive Angebot durch einen eigenen Kellerraum sowie einen Außenstellplatz, der bereits im Kaufpreis enthalten ist.
Lagebeschreibung der Wohnung
Die Maisonette-Wohnung befindet sich in bevorzugter Wohnlage von Leichlingen, in der ruhigen Straße ‚An der Wupper‘. Die Umgebung ist geprägt von viel Grün, einer angenehmen Nachbarschaft und der unmittelbaren Nähe zum namensgebenden Fluss, der dieser Adresse eine besondere Wohnqualität verleiht.
Leichlingen – auch als Blütenstadt bekannt – verbindet hohe Lebensqualität mit hervorragender Infrastruktur. Der tägliche Bedarf lässt sich bequem in der näheren Umgebung decken: Supermärkte, Bäckereien, Apotheken sowie diverse Dienstleister sind schnell erreichbar. Auch der charmante Ortskern mit seinen kleinen Geschäften, Cafés und Restaurants liegt nur wenige Minuten entfernt.
Die Anbindung an den öffentlichen Nahverkehr ist ausgezeichnet. Der Bahnhof Leichlingen bietet regelmäßige Verbindungen Richtung Köln, Düsseldorf und Wuppertal. Pendler schätzen zudem die schnelle Erreichbarkeit der Autobahnen A3 und A1, wodurch die umliegenden Metropolregionen optimal angebunden sind.
Für Freizeit und Erholung bietet die Lage zahlreiche Möglichkeiten: Spazier- und Radwege entlang der Wupper, weitläufige Grünflächen, Sportvereine sowie attraktive Naherholungsgebiete sorgen für eine hohe Wohn- und Lebensqualität. Familien profitieren zudem von einem guten Angebot an Kindergärten, Schulen und Spielplätzen in der Umgebung.
| Immobilienangebot |
Leichlingen |
| Objektart |
Maisonette-Wohnung |
| Kaufpreis |
€ 237.000,00 |
| Wohnfläche |
ca. 85 m² |
| Balkon / Terrasse |
Dachterrasse vorhanden |
| Nutzfläche |
ca. 6 m² |
| Hausgeld |
€ 257,00 |
| Anzahl der Zimmer |
3 Zimmerwohnung |
| Parkplatz |
1 PKW-Außenstellplatz |
| Kellerraum |
Eigener Kellerraum ist vorhanden. |
| Etage / Etagen |
2. Etage / 2 Etagen |
| Aufzug |
KEIN Aufzug vorhanden. |
| Baujahr |
1985 |
| Zustand |
renoviert |
| Energieausweis |
Verbrauchsausweis |
| wesentlicher Energieträger |
Gas |
| Endenergieverbrauch / Energieeffizienzklasse |
109,6 kWh/(m²*a) / D |
| Käufer-Provision |
3,50 % inkl. MwSt. |
Doppel-Isolierverglasung Etagenheizung Offene Küche Abstellraum Dusche Stellplatz Kellerraum Dachterrasse
| folgt in Kürze ... |
| folgt in Kürze ... |
| folgt in Kürze ... |
| folgt in Kürze ... |
| folgt in Kürze ... |
| folgt in Kürze ... |
| folgt in Kürze ... |
| folgt in Kürze ... |
| folgt in Kürze ... |
Widerrufsrecht:
Sie können Ihre Vertragserklärung innerhalb von 14 Tagen ohne Angabe von Gründen in Textform (z.B. Brief, E-Mail) widerrufen. Die Frist beginnt nach Erhalt dieser Belehrung in Textform. Jedoch nicht vor Vertragsschluss und auch nicht vor Erfüllung unserer Informationspflichten gemäß Artikel 246 § 2 in Verbindung mit § 1 Absatz 1 und 2 EGBGB.
Zur Wahrung der Widerrufsfrist genügt die rechtzeitige Absendung des Widerrufs. Der Widerruf ist zu richten an:
Goost Immobilien
Deutz-Mülheimer Straße 183a
51063 Köln
Telefon 0221 48530774
Email kontakt@goost-immobilien.de
Widerrufsfolgen:
Im Falle eines wirksamen Widerrufs sind die beiderseits empfangenen Leistungen zurückzugewähren und ggf. gezogene Nutzungen (z.B. Zinsen) herauszugeben. Können Sie uns die empfangene Leistung ganz oder teilweise nicht oder nur in verschlechtertem Zustand zurückgewähren, müssen Sie uns insoweit ggf. Wertersatz leisten.
Dies kann dazu führen, dass Sie die vertraglichen Verpflichtungen für den Zeitraum bis zum Widerruf gleichwohl erfüllen müssen.
Verpflichtungen zur Erstattung von Zahlungen müssen innerhalb von 30 Tagen erfüllt werden. Die Frist beginnt für Sie mit der Absendung Ihrer Widerrufserklärung, für uns mit deren Empfang.
Ihr Widerrufsrecht erlischt vorzeitig, wenn der Vertrag von beiden Seiten auf Ihren ausdrücklichen Wunsch vollständig erfüllt ist, bevor Sie Ihr Widerrufsrecht ausgeübt haben.
Ende der Widerrufsbelehrung