Objektbeschreibung
Videobesichtigung für diese zum Kauf stehende Eigentumswohnung im Kunibertsviertel in der Kölner Innenstadt!
ACHTUNG!
Dieses Immobilienangebot ist bereits erfolgreich verkauft!
Insofern Sie auf der Suche nach einer Immobilie zum Kauf oder zur Miete sind, dann senden Sie uns gerne eine Email mit Ihrem
Suchprofil zu.
Sie möchten Ihre Immobilie verkaufen oder vermieten? Dann setzen Sie sich ebenfalls sehr gerne mit uns in Verbindung.
Sie sehen gerade einen Platzhalterinhalt von YouTube. Um auf den eigentlichen Inhalt zuzugreifen, klicken Sie auf die Schaltfläche unten. Bitte beachten Sie, dass dabei Daten an Drittanbieter weitergegeben werden.
Mehr Informationen
Objektbeschreibung
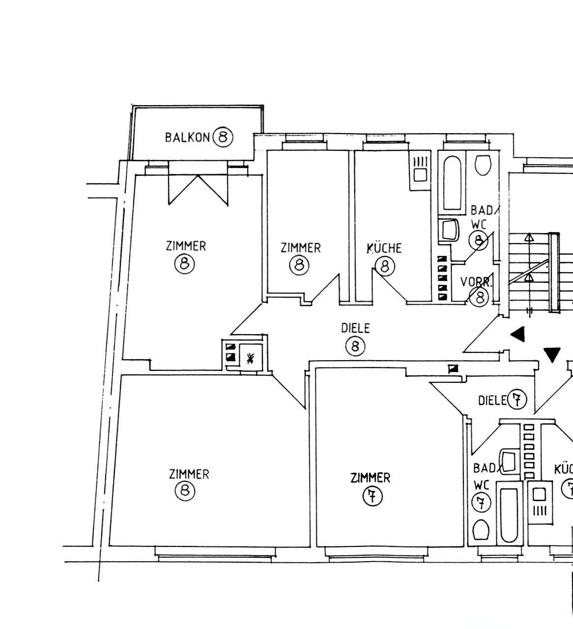
Individuelle Traumwohnung im Kunibertsviertel – 3 Zimmerwohnung mit Balkon im Herzen von Köln – zwischen Ebertplatz und Dom!
Willkommen zu Ihrer neuen Wohnidee!
Diese 3-Zimmer-Eigentumswohnung im 2. Obergeschoss eines charmanten Mehrfamilienhauses bietet Ihnen die perfekte Basis, um Ihre ganz persönlichen Wohnträume zu verwirklichen.
Die Wohnung wurde bereits vollständig entkernt – ein idealer Ausgangspunkt, um Räume, Materialien und Ausstattung ganz nach Ihrem individuellen Geschmack zu gestalten.
Der Balkon lädt zum Entspannen ein und schenkt Ihnen kleine Auszeiten mitten in der pulsierenden Domstadt.
Das Wichtigste auf einen Blick:
• 3 Zimmer, Küche, Bad
• Balkon mit Platz zum Verweilen
• 2.Obergeschoss eines gepflegten Mehrfamilienhauses
• Bereits entkernt – bereit für Ihren Ausbau nach Maß
Ihre Vorteile:
• Zentrale Innenstadtlage mit optimaler Infrastruktur
• Alle Einkaufsmöglichkeiten, Cafés, Restaurants und Kulturangebote fußläufig erreichbar
• Hervorragende Anbindung an den öffentlichen Nahverkehr
Ob für Eigennutzer, die sich ein individuelles Zuhause schaffen möchten, oder für Investoren mit Blick auf eine wertbeständige Lage – diese Wohnung ist eine echte Gelegenheit.
Lagebeschreibung
Die Wohnung befindet sich in der Domstraße, mitten im beliebten Kunibertsviertel der Kölner Innenstadt. Dieses Viertel zeichnet sich durch seine zentrale, aber zugleich angenehm ruhige Lage zwischen Rhein und Hauptbahnhof aus.
Von hier erreichen Sie den Kölner Dom, den Hauptbahnhof sowie die lebendige Altstadt in nur wenigen Gehminuten. Auch die Rheinpromenade mit ihren Grünflächen und Spazierwegen liegt praktisch vor der Tür und bietet Erholung im direkten Umfeld.
Einkaufsmöglichkeiten für den täglichen Bedarf, Restaurants, Cafés und kulturelle Einrichtungen sind in unmittelbarer Nähe vorhanden und machen das urbane Wohnen besonders attraktiv.
Die Anbindung an den öffentlichen Nahverkehr ist hervorragend: Der Kölner Hauptbahnhof und der Ebertplatz sind fußläufig erreichbar und bietet Anschluss an den Nah- und Fernverkehr. Straßenbahn- und Buslinien gewährleisten zudem eine schnelle Verbindung in alle Stadtteile.
Das Kunibertsviertel verbindet auf ideale Weise urbanes Leben mit einer historisch geprägten Umgebung und zählt damit zu den besonders gefragten Innenstadtlagen Kölns.
Mehr Informationen zu der Lage des Kunibertsviertels innerhalb der Kölner Innenstadt lesen Sie hier in unserem Veedelsbericht.
| Veedel |
Kunibertsviertel - Kölner Altstadt-Nord |
| Kaufpreis |
€ 360.000,00 |
| Wohnfläche |
ca. 71 m² |
| Nutzfläche |
ca. 6 m² |
| Anzahl der Zimmer |
3 Zimmer, Küche, Diele, Bad, Balkon |
| Hausgeld |
€ 229,00 |
| Etage / Etagen |
2. Etage von 4 Etagen |
| Aufzug |
Kein Aufzug vorhanden! |
| Baujahr |
1955 |
| Zustand |
Wohnung ist entkernt |
| Befeuerung |
Gas |
| Heizungsart |
Gas-Etagenheizung |
| Energieausweis |
liegt noch nicht vor |
| Käufer-Provision |
3,50 % inkl. MwSt. |
Doppel-Isolierverglasung Etagenheizung Badezimmer mit Fenster Badewanne Kellerraum Balkon
| folgt in Kürze ... |
| folgt in Kürze ... |
| folgt in Kürze ... |
| folgt in Kürze ... |
| folgt in Kürze ... |
| folgt in Kürze ... |
Widerrufsrecht:
Sie können Ihre Vertragserklärung innerhalb von 14 Tagen ohne Angabe von Gründen in Textform (z.B. Brief, E-Mail) widerrufen. Die Frist beginnt nach Erhalt dieser Belehrung in Textform. Jedoch nicht vor Vertragsschluss und auch nicht vor Erfüllung unserer Informationspflichten gemäß Artikel 246 § 2 in Verbindung mit § 1 Absatz 1 und 2 EGBGB.
Zur Wahrung der Widerrufsfrist genügt die rechtzeitige Absendung des Widerrufs. Der Widerruf ist zu richten an:
Goost Immobilien
Deutz-Mülheimer Straße 183a
51063 Köln
Telefon 0221 48530774
Email kontakt@goost-immobilien.de
Widerrufsfolgen:
Im Falle eines wirksamen Widerrufs sind die beiderseits empfangenen Leistungen zurückzugewähren und ggf. gezogene Nutzungen (z.B. Zinsen) herauszugeben. Können Sie uns die empfangene Leistung ganz oder teilweise nicht oder nur in verschlechtertem Zustand zurückgewähren, müssen Sie uns insoweit ggf. Wertersatz leisten.
Dies kann dazu führen, dass Sie die vertraglichen Verpflichtungen für den Zeitraum bis zum Widerruf gleichwohl erfüllen müssen.
Verpflichtungen zur Erstattung von Zahlungen müssen innerhalb von 30 Tagen erfüllt werden. Die Frist beginnt für Sie mit der Absendung Ihrer Widerrufserklärung, für uns mit deren Empfang.
Ihr Widerrufsrecht erlischt vorzeitig, wenn der Vertrag von beiden Seiten auf Ihren ausdrücklichen Wunsch vollständig erfüllt ist, bevor Sie Ihr Widerrufsrecht ausgeübt haben.
Ende der Widerrufsbelehrung