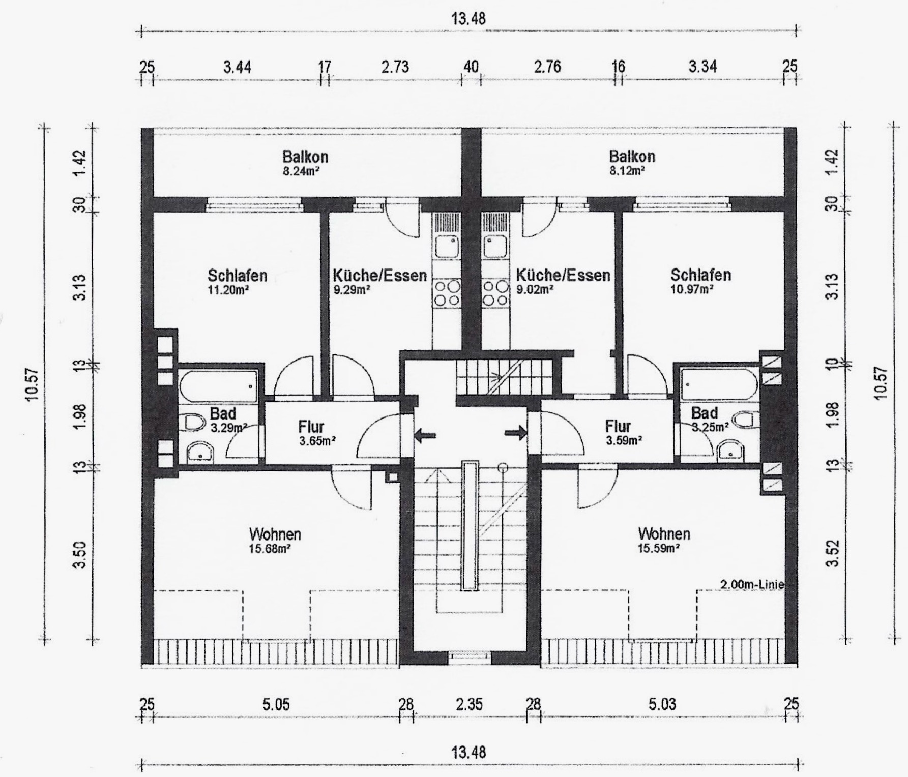
Startseite » Kaufen » Mehrfamilienhaus in Köln-Ehrenfeld kaufen inklusive Videobesichtigung mit Makler Goost » Etagengrundriss 3.OG